Update on the new park

The City plans to open the Sherwood Forest Park sometime in August. They still need to do various inspections of the work and they want the turf grass to get established, hopefully with some rainy weather. New trees will be planted in the fall.

If the timeline slips, we will let you know.

Neighborhood Update

Update from the OPSFR Executive

We have postponed the BBQ and Annual General Meeting for the Orchard Park Sherwood Forest Ratepayers until further notice. Hopefully we can arrange something in the fall. We will also delay the collection of dues.

Please note that the Next Door mailing you may have received is not something that the Ratepayers have initiated.

Update on Sherwood Forest Park and Road Work on Runnymede and Abbey Rise

We are waiting to hear from City staff whether or not the park development is one of the projects the city will be delaying because of its financial crunch due to COVID-19. One project that is currently still on the books for this year is the road work on Runnymede. However, we have been advised at this point, work on Abbey Rise is delayed a year.

Reminder: Volunteers in the Neighbourhood

As a reminder, there are volunteers in the neighbourhood willing to help out. Please don’t hesitate to contact Sandy if you would like someone to pick up groceries or other items you need.

Update on park construction

The City of London has had to defer construction of Sherwood Forest Park (and others across the city) from fall 2019 to spring 2020. The project has been delayed to ensure a high quality finished product, to provide a little more time to better coordinate with the adjacent developer and to ensure that the park remains useable over the winter months (this means the dirt piles will be leveled). The City has apologized for the delay, but hopes the neighbourhood understands and appreciates the key reasons for the delay. The City has indicated that this park project will be their highest priority to complete in the spring, 2020, once conditions are suitable.

If you have any questions, please contact City staff directly, either Stephanie Wilson at 519-661-2489 x 1871, stwilson@london.ca or Jeff Bruin at extension 5067, jbruin@london.ca

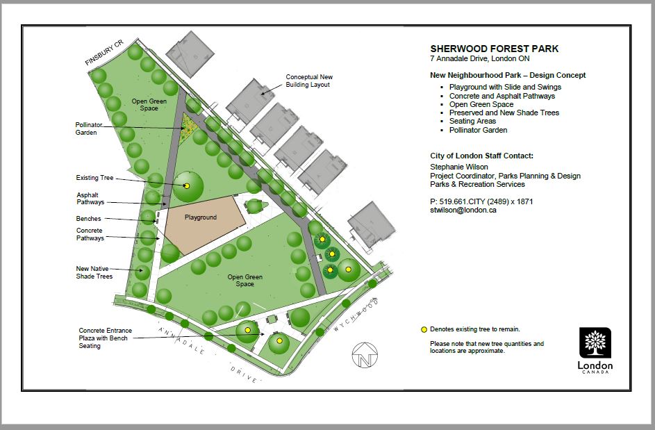
Update on Sherwood Forest Park

We received notice from the City today that work will begin next week at the new park on the south side of the former Sherwood Forest School site. Here is the design plan for the park showing the location of the play area, benches, paths, etc. There will be over 30 new native trees planted including sugar maple, silver maple, native red maple, tulip, and basswood. The new trees will be minimum caliper of 50mm, but most will be 60 or 70mm caliper. The city is also looking into some larger ones.

The plan shows which of the current trees are slated to remain including the large basswood tree. The City does need to remove some of the existing trees that are in poor health. The tree removals in the park are expected to begin on Tuesday of next week, and completed within a few days.

If you have any questions about the project, Stephanie Wilson is the city staff person who is coordinating the project.

Stephanie Wilson, OALA, CSLA
Project Coordinator, Parks Planning & Design
stwilson@london.ca
P: 519.661.CITY (2489) x 1871 | | Fax: 519. 963.1483

Sherwood Forest school site

Development at the former Sherwood Forest School site

If you have concerns during the construction, there are two contacts.

  • Dave Tennant from Forest Park Homes is the developer. He has been very good to work with and having roots in the area, wants to see things go well. If you have any questions, please feel free to contact him at: dave@dtuc.ca.
  • In addition, a City has a “subdivision ambassador” – Jeff Shaughnessy. He acts as a go-between with the public, developers, and City Councillors for all matters related to new subdivision development. Although he doesn’t have a ‘magic wand’ that can solve all issues, he knows the temporary impacts to the surrounding area during development can raise some questions. He can be reached at P: 519.661.CITY(2489) x 4931 | C: 519.852.5220 or jshaughn@london.ca

New Park Amenities for Sherwood Forest Park

The city is still set to construct the park this fall. This will depend on a few factors including the weather. The actual start date will be up to the City’s contractor, but the City will provide an update when start up nears. The first action on site will be removal of some trees in poor health. (The developer will be removing some trees as well on the part of the site that will be used for housing).

Park amenities will include a playground, open green space, large ‘park’ trees, a pollinator garden, seating areas, and pathway connections to the sidewalks. With the emphasis the City heard for trees, part of the plan includes making arrangements for larger caliper trees than would typically be planted in neighbourhood parks. The playground also will have more features than is typical for Neighbourhood Parks, including a play structure with multiple slides, and a separate area with two bays of swings (four total; one designed for toddlers, one that is accessible, and two standard size ones). The playground equipment is tentatively set for October installation.

If you have questions, the contact for this project from the City is listed below. She welcomes your questions.
Stephanie Wilson
P: 519.661.CITY (2489) x 1871 | stwilson@london.ca