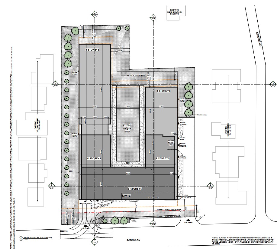
The owners of the two properties at 299-307 Sarnia Road have made changes to their previous proposal. It is consistent with changes City Council have made to the heights of buildings along Sarnia Road. Detailed concept drawings are attached.
- Height is now 8-storeys along Sarnia Road, with a step back to 6-storeys and then 4-storeys as you go further north on the property.
- Layby location is now solely on the property (8-storey proposal), whereas it was within the boulevard for the 6-storey proposal.
- This will likely still be a topic of debate between the City Planners and the owners regarding the location of the layby
- Interior side yard setback of 12.0m (both 8-storey and 6-storey proposal)
- Rear yard setback of 12.5m (both 8-storey and 6-storey proposal)
- 6-storey proposal = 150 units and 585 beds, 8-storey proposal = 182 units and 585 beds
- The final parking layout/number is yet to be determined; the attached currently shows 108 spaces for 182 units, whereas the previous 6-storey proposal had 166 spaces for 150 units.
As you can see, they are not using the 542 Kininvie Drive property as part of this project.

Considering the nature of the change from the previous approved 6-storey proposal (additional 2-storey height and 32 residential unit increase), the planning consultants for the owners won’t be arranging a community meeting; however, they are more than happy to set up a virtual or in person meeting for anyone interested in the nature of these changes as a more focused group. The primary reason is that both our Site Plan and Zoning By-law Amendment application are still subject to a public meeting at City Hall where anyone can raise concerns with the City’s Planning Committee (a committee of City Council made up of City Councillors); the changes are in line with the London Plan; and this new proposal does not significantly differ from what they already have approval for (with 6 storeys).
This being said, you can contact the planning consultant, Katelyn Crowley directly, katelyn.c@zpplan.com with a copy to Councillor Trosow strosow@london.ca and opsfrp@gmail.com with questions and concerns. Katelyn is also happy to set up a virtual meeting or small group meeting.
As an aside, for those concerned about overflow parking ending up on Kininvie, I would recommend asking for 8 am to 6 pm parking restrictions. This can be requested by e-mailing parkingregulationchangerequest@london.ca
We anticipate that construction will start later this year on one or both of the developments at 279 and 299-307 Sarnia Road. The development at 279 is still, at present anyway, for two three-storey buildings.
Collectively, we are hamstrung by Provincial legislation that took away the rights of citizens and neighbourhood associations to appeal land use decisions by City Councils.


